Spatiu comercial la strada, Bucuresti centru
Inchiriere
Spatii comerciale
45 m²
3 camera(e)
ID Anunt: 871771
Descriere
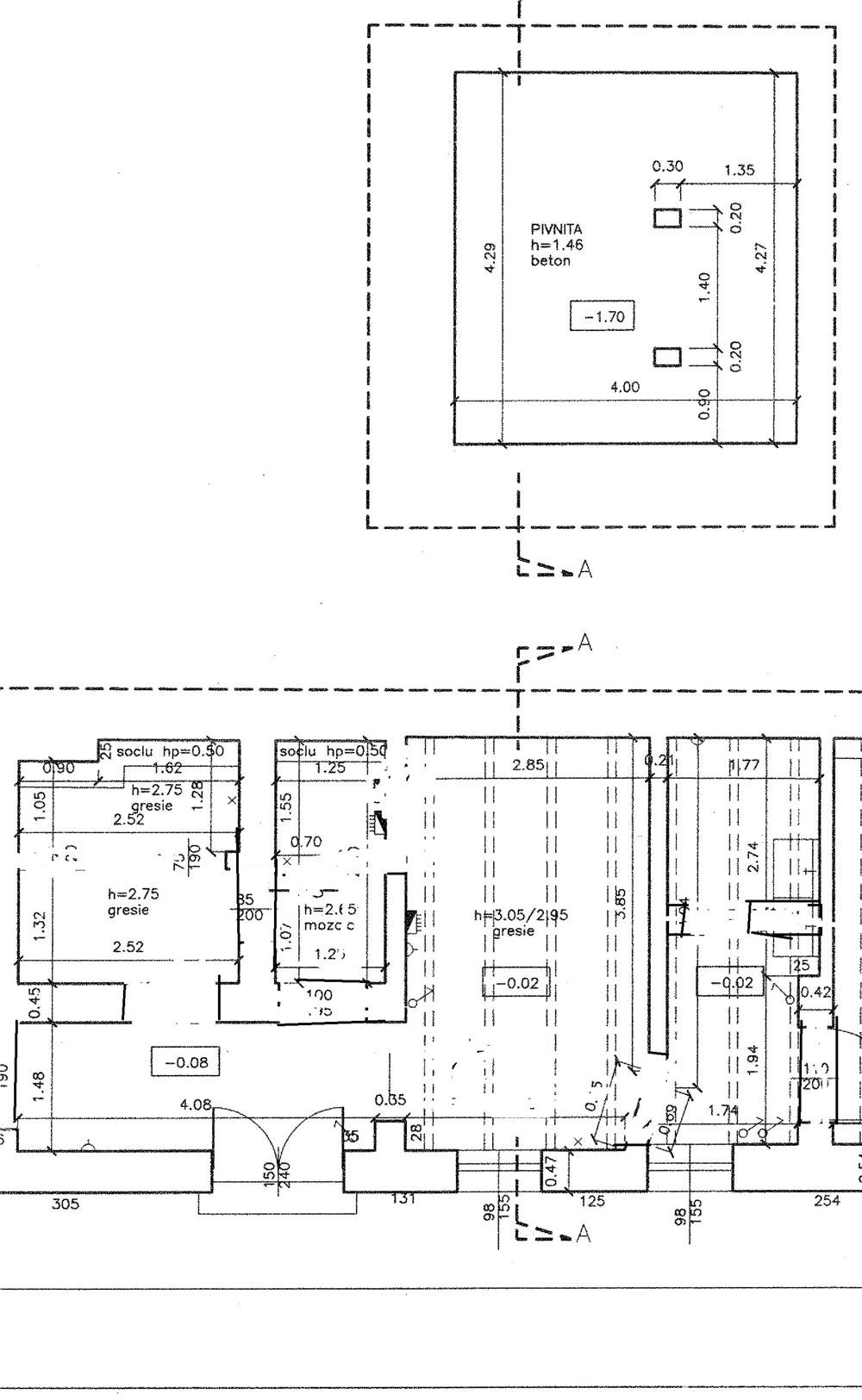
Spatiu comercial in centru, la strada cu trafic (str. MItropolitul Nifon nr 32, langa Parcul Carol), pe doua nivele (parter 66 mp, terasa inchisa/ foisor 53 mp). A fost cafenea, mobilierul si parte din echipamente inca exista. Spatiul se poate mari cu terasa deschisa si constructii auxiliare, pana la inca 350 mp suplimentari, la pretul de 10 euro/ mp. In afara de intrarea principala exista un al doilea acces, la nivelul terasei, pentru aprovizionare si acces personal. Exista toate utilitatile necesare: apa, canalizare, centrala termica, gaze, alimentare electrica (mono si trifazic), toate contorizate separat. Partea de securitate e asigurata cu rulouri electrice si camere. Proprietarul cere 1 luna garantie, separat comisionul pentru agentie (daca inchirierea se face prin agentie) si un termen minim de inchiriere de 2 ani. Vizionarile pentru itnerior se fac cu intalnire prealabila, numai in cursul dupa-amiezii, aranjate cu o zi inainte. Spatiul e impozitat ca spatiu comercial, tine de sectorul 4, iar autorizatiile specifice se fac la Primaria Bucurestiului, spatiul apartinand, geografic, centrului vechi.- Caracteristici 26-04-2026
- Tip tranzactie: Inchiriere
- Tip imobil: Spatii comerciale
- An constructie: 1992
- Compartimentare:
- Numar camere: 3
- Etaj: 1
- Suprafata: 45 m²
- Oras: Bucuresti-Ilfov
- Localitate/Adresa: Parcul Carol
- Zona:
