Garsoniera ultracentral, Carol, renovata mobilata utilata AC Centrala balcon boxa lift bulina
Vanzare
Studio
41 m²
1 camera(e)
ID Anunt: 872766
Descriere
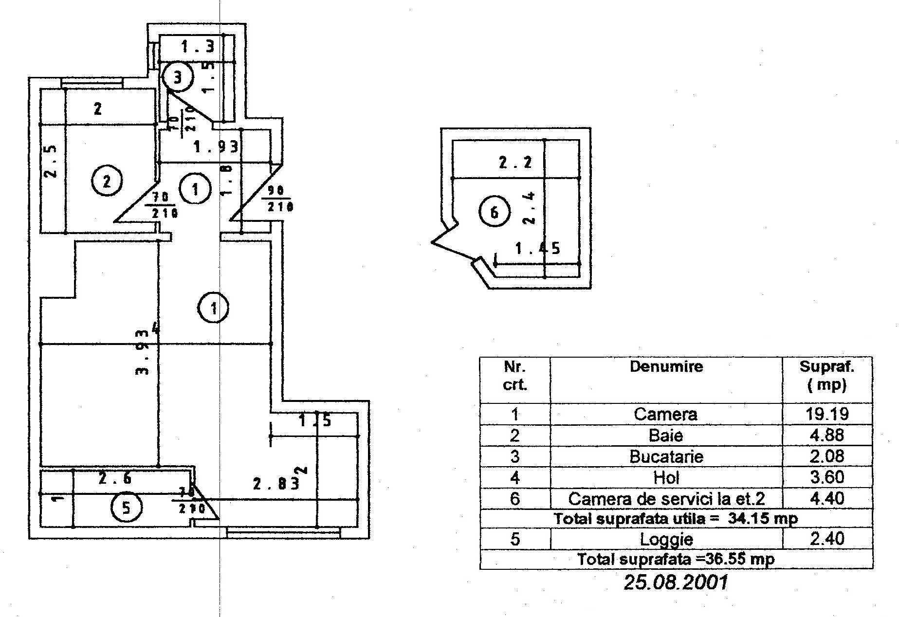
Carol, garsoniera ultra-central, balcon 2.4 mp, boxa 5 mp (camera de serviciu cu chiuveta), impartita optim, tavan inalt, renovata, mobilata, utilata, electrocasnice, gata de locuit, aer conditionat, centrala termica, et. 7, lift, interfon. Constructie 1934, clasa RsI (bulina rosie)- Caracteristici 28-04-2026
- Tip tranzactie: Vanzare
- Tip imobil: Studio
- An constructie: 1934
- Compartimentare: decomandat
- Numar camere: 1
- Etaj: 7
- Suprafata: 41 m²
- Oras: Bucuresti-Ilfov
- Localitate/Adresa: Bucuresti
- Zona:
